0 0

Мы открыты
{region_schedule}

Звоните!
{region_phone}

Наш адрес
Смотреть

Бесплатная доставка
При покупке от 20 тысяч рублей

Каминная топка Hoxter Haka 63/51a Стальной теплообменник с вертикальным выходом

Теги: каминная топка

Каминная топка HOXTER HAKA 63/51а может быть с тепловоздушным режимом, с аккумулирующим режимом с массой возле топки, с аккумулирующим режимом с массой на каминной вставке. Эту топку можно использовать для создания теплоемких облицовок и для отопления дома с применением воздушной разводки по комнатам. Особая конструкция дымосборника позволяет больше снимать тепла с дымовых газов, о чем свидетельствует низкая температура продуктов сгорания 261 градусов при стандартной закладке дров 3,8 кг. Также для уменьшения теплового излучения через стекло можно опционально заказать двойное стекло. Стандартно дверь может открываться на петлях расположенных либо справа, либо слева.

Особенности топки Haka 63/51аСфера обязанности в работе с прямым подключением к дымоходу: 6-16 кВтКоличество топлива в операции с дополнительной массы хранения: 6 кгНаружное освещениеСъемная крышка рама, которая поставляется в черном или стальной конструкцииЧистое решение для вашей гостиной

Благодаря системе регулировки первичного воздушного потока можно эксплуатировать топку на протяжении длительного времени при минимальной загрузке дров. Забор воздуха из вне позволит работать топке даже в помещениях с недостаточной вентиляцией.

Система подвода топочного воздуха устроена таким образом, чтобы приточный воздух был направлен на смотровое стекло. Под действием динамической защиты стекла пыль и сажа возвращаются обратно в топочную камеру, стекло остается чистым.

Особенности и преимущества топок HOXTERПодовое горениеДрова сгорают в мелкую пыль, меньше отходов и больше тепла.Интервал профилактического обслуживания топки увеличивается.При наличии золы в топке время розжига сокращается.Всегда чистое стеклоВысокая температура способствует очищению топки от сажи,а потоки воздуха предотвращают её осаждение на стекло топки.Простота эксплуатацииЛегкое плавное открывание дверцыпростой розжиг и регулировка пламениАвтоматика управления горением ABRA-6Двойное остеклениеУменьшает передачу энергии через дверцу,повышает температуру внутри камеры сгорания.Повышает комфорт пребывания возле камина.Надежность и техническое совершенствоНадежность конструкцииДверной профиль особой формы из стали толщиной от 2,5 ммМинимальное тепловое расширениедолговечность и безопасность эксплуатацииГерметичность топочной дверцыОбеспечивается конструктивом профиля и пружинным механизмом, прижимающим дверцу с силой 250 Ньютонов (25 кг)Видеообзор: Преимущества топок HOXTERВидеообзор: Надежность топок HoxterВидеообзор: Hoxter - механизм дверцы с открыванием вверхВидеообзор: Простота в эксплуатации HoxterВидеообзор: Hoxter. Съемная ручка

Ищем лучшую цену в {region_field_10}

Мы стараемся, чтобы Вы остались довольны, именно поэтому представляем Вам возможность приобрести данный товар на более выгодных условиях. Для этого всего лишь нужно отправить запрос во все магазины города, а они в свою очередь предоставят Вам данные по ценам и акциям.

Заполните данные для запроса:
Товар: Каминная топка Hoxter Haka 63/51a Стальной теплообменник с вертикальным выходом
Топливо Дрова
Форма стекла Прямое
Материал топки Сталь
Водяной контур Нет
Футеровка Шамот
Подъемная дверца Нет
Шибер Нет
Колосник Нет
Зольник Нет
Мощность (кВт) 13
КПД (%) 80
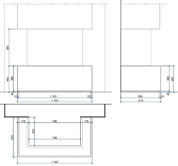
Высота (мм) 1490
Ширина (мм) 708
Глубина (мм) 512
Вес 218 кг
Бренд Hoxter (Чехия)
Выход дымохода сверху
Рассказать друзьям!
Купить Каминная топка Hoxter Haka 63/51a Стальной теплообменник с вертикальным выходом
Артикул товара: 3938
В наличии
426 910 руб. ×
Наши преимущества
  • Заказ
    Наш менеджер готов ответить на все ваши вопросы.
  • Доставка
    Мы доставим ваш заказ по городу, области или через транспортные компании по всей России.
  • Оплата
    Оплатите заказ банковской картой, наличными в нашем магазине или при доставке наличными.
  • Розничный магазин
    Будем рады видеть вас в нашем магазине по адресу {region_field_3}
{region_field_23}