0 0

Мы открыты
{region_schedule}

Звоните!
{region_phone}

Наш адрес
Смотреть

Бесплатная доставка
При покупке от 20 тысяч рублей

Каминная топка АСТОВ ПТ 10057

Теги: каминная топка

Материал изготовления и конструктивные особенности

В торцах, топка имеет двойной корпус.

К внешнему, выполненному из котловой стали, приварены п-образные профили (рёбра жёсткости), таким способом, что, в металле, во время разогрева, не возникает деформации (предварительно напряжённая конструкция). Это обеспечивает неизменность формы, эффективность теплопередачи и долговечность.

Футеровка формирует структуру, несущую на себе всю термическую нагрузку.

Шамот, керамические вставки – стенки разогревается продолжительно, температура развивается более, чем с металлическим содержимым. Превосходно для любителей долго пожечь.

Панели 3Д – сбалансированный вариант, тепло распределяется равномерно, а внушительная масса поддерживает высокотемпературное горение.

Широкие стальные пластины для стиля хай-тек.

Вид на огонь

Две дверцы с прямым стеклом. Пространная, сквозная модель, великолепно вписывается в межкомнатные перегородки, для созерцания огня как из гостиной, так и из спальни или кабинета, служит отличной основой, для создания центрального (островного) камина.

Увеличенный обзор, благодаря специальной рамке.

Шелкография завершает обрамление очага, гармонируя с внутренним убранством топочной части.

Усиленный воздушный поток на дожиг, предохраняет стеклокерамику от нагара. Обе застеклённые поверхности остаются неизменно чистыми, пока вы протапливаете.

Плотное прижимание дверки, в нижней точке закрывания, и качественные регуляторы, позволяют без напряжения управлять огненным процессом, от практически невидимого, до бушующего.

Ручка для открывания, бархатная на ощупь, не обжигает руки.

Дверь поднимается легко и бесшумно, благодаря особенным, долговечным приспособлениям.

Подъёмный механизм располагается, с одной стороны.

Мощность топки и необходимые габариты подходящего помещения.

Номинальная теплопроизводительность устройства 9 кВт. Оптимальный объём зала 225 м3. Вы будете чувствовать себя комфортно, даже если очаг горит круглосуточно.

Тип подсоединения к дымоходу и условия для формирования хорошей тяги

Выходной патрубок сделан для подключения трубы «по конденсату».

Влага будет испарятся, не оказывая разрушающего воздействия на стыковочные узлы.

Для уменьшения сопротивления в дымовом канале и улучшения работы топливника, обязательно применяйте розжиг сверху, когда растапливаете холодный камин.

Как избежать проблем с дымом, при обустройстве газохода, подробно описано в руководстве.

Гарантии производителя

  • Гарантийный срок, для подачи рекламации – 5 лет.
  • АСТОВ гарантирует исправную службу изделия, на протяжении всего периода использования, если 80% времени, будет поддерживаться умеренный (средний) режим сгорания, с соблюдением всех правил монтажа и эксплуатации, изложенных в инструкции.
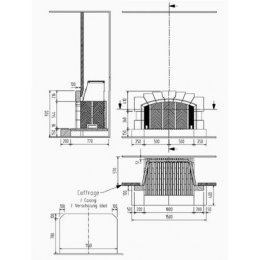
  • Габаритные размеры Ш-1160мм*В-1296мм*Г-549мм
  • Размер проёма для дверки Ш-1000мм *В-570мм
  • Диаметр дымового патрубка Ф=250 мм
  • Футеровка – Стальные широкие пластины, Панели 3Д, Шамот или Керамика
  • Вес 280-350 кг (в зависимости от футеровки)
  • Номинальная мощность 9 квт
  • КПД с закрытой дверкой, в номинальном режиме 75%
  • Система «чистое стекло» регулируемая.
  • Регулируемый вторичный дожиг.
  • Рекомендуется для помещений не менее 150 м3 (норма 225 м3)
  • В комплекте ножки, регулируемые по высоте
  • Гарантия 5 лет при условии соблюдения прилагаемой инструкции и СНиП

Ищем лучшую цену в {region_field_10}

Мы стараемся, чтобы Вы остались довольны, именно поэтому представляем Вам возможность приобрести данный товар на более выгодных условиях. Для этого всего лишь нужно отправить запрос во все магазины города, а они в свою очередь предоставят Вам данные по ценам и акциям.

Заполните данные для запроса:
Товар: Каминная топка АСТОВ ПТ 10057
Топливо Дрова
Форма стекла Двухстороннее
Материал топки Сталь
Водяной контур Нет
Футеровка Шамот, Сталь, Керамика
Подъемная дверца Есть
Ширина фасада топки (мм) 1000
Высота фасада топки (мм) 570
Шибер Нет
Колосник Нет
Зольник Нет
Дожиг воздуха Вторичный
Мощность (кВт) 9
КПД (%) 75
Диаметр (мм) 250
Высота (мм) 1296
Ширина (мм) 1060
Глубина (мм) 549
Вес 280 кг
Бренд Астов (РФ)
Загрузка...
Рассказать друзьям!
Купить Каминная топка АСТОВ ПТ 10057
В наличии
514 000 руб. 452 000 руб. ×
Наши преимущества
  • Заказ
    Наш менеджер готов ответить на все ваши вопросы.
  • Доставка
    Мы доставим ваш заказ по городу, области или через транспортные компании по всей России.
  • Оплата
    Оплатите заказ банковской картой, наличными в нашем магазине или при доставке наличными.
  • Розничный магазин
    Будем рады видеть вас в нашем магазине по адресу {region_field_3}
{region_field_23}